Обяви За нас Контакти
Продава КЪЩА
област София, с. Хераково
кв. Бобен, ул. Обиколна
349 000 €
682 584.67 лв.

(1 485 €, 2 904.41 лв./m2)
Не се начислява ДДС
История на цената
Коригирана в 15:29 на 11 декември, 2025 год.
Обявата е посетена 3206 пъти.
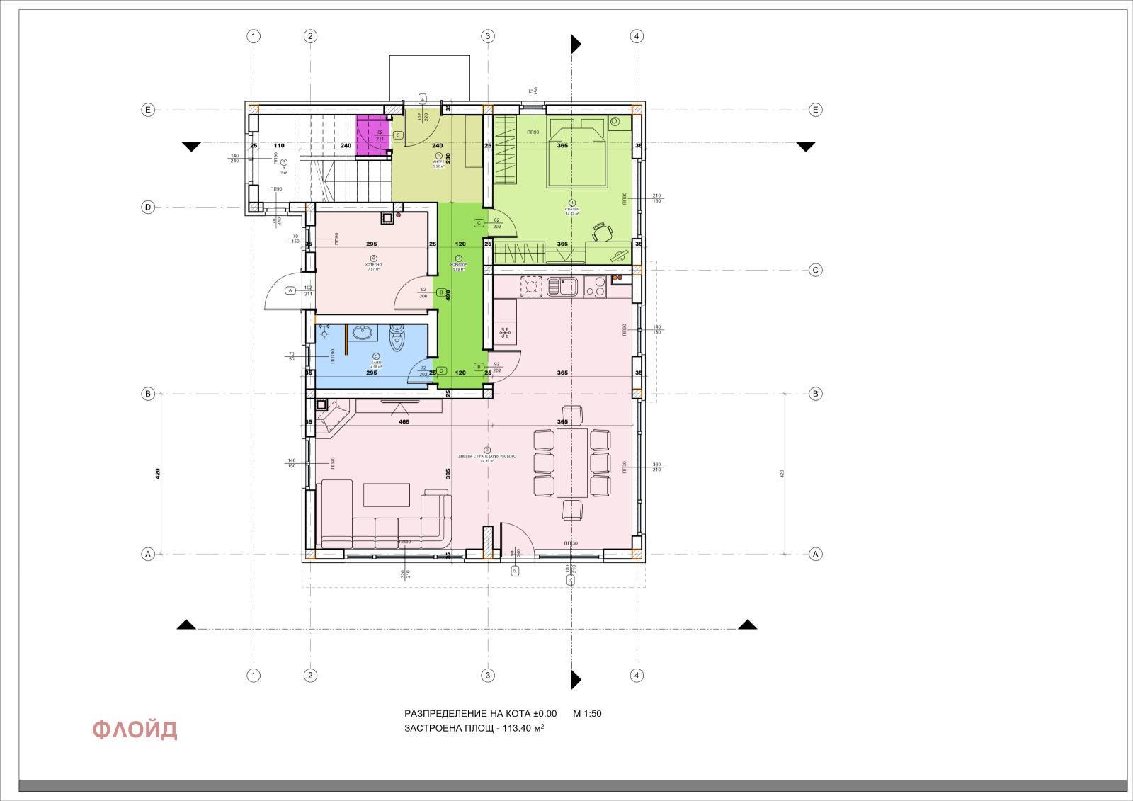
Площ:
235 m2
Двор:
752 m2
Етаж:
2
Строителство:
Тухла, Въведен в експлоатация 2025 г.

Описание на имота:


Възможност да се ползва високо финансиране от банка. Съседните къщи са продадени на млади семейства с деца, което създава отлична среда в квартала. Изключително качество на изпълнение от дългогодишно утвърдена строителна фирма. Разполага с четири самостоятелни спални, просторен хол със светла кухня, три бани с тоалетни, техническо помещение, тераса и около 60 кв.м. подпокривно пространство с капандури, което е като бонус, извън застроената площ на двата основни етажа от 235 кв.м. Намира се на много слънчево място в кв. Бобен, с. Хераково, общ. Божурище, на няколко минути от София по главния път за Калотина. Изграден е нов централен водопровод с голям дебит, както и пречиствателна инсталация за отпадните води към всяка къща, която може да служи и за напояване. Отоплението е с изводи за радиатори , като най- подходящия вариант е с термопомпа и допълнително инсталиране на соларни панели на покрива. Предвидени са изводи и за климатици. Къщите са със сертификат за енергийна ефективност клас- А. По проект са с паркоместа в двора, които впоследствие могат да бъдат покрити. Най- изгодната оферта за чисто нова къща в такава близост до столицата. По- ниска цена на квадратен метър от панелен апартамент в града, дори без да отчитаме земята и подпокривното помещение. Предлага се и възможност за довършителни работи по проект на новите собственици. За повече информация и огледи по всяко време: Драгостин Паунов- 0888 527 967.С ключ.Работим с колеги всички наши оферти.
Особености
Тухла
С паркинг
За контакт:
0888527967
Брокер:
Драгостин Паунов
02/8581941;0888527967
Още оферти от брокера: Продава | Дава под наем | Купува | Наема
Агенция:
ФЛОЙД
0888527967,0888208442;028581941
ФЛОЙД logo
Медал за прослужено време
В imot.bg от 2005 г.
floydbg.imot.bg
Адрес:
област София, гр. София, ж.к.Гоце Делчев,ул.Кестенова гора, бл.26
http://floydbg.imot.bg
ИЗПРАТИ ЗАПИТВАНЕ
ИЗПРАТИ ЗАПИТВАНЕТО

Продава КЪЩА
област София, с. Хераково
кв. Бобен, ул. Обиколна
Обява: 1j175612274487624

349 000 €
682 584.67 лв.
История на цената
(1 485 €, 2 904.41 лв./m2)

Не се начислява ДДС
ЗАПАЗИ ОБЯВАТА

Местоположение: област София, с. Хераково, кв. Бобен, ул. Обиколна